鸿荣源壹成核心十区(售楼处)-鸿荣源壹成核心十

深圳文化馆新馆:建面约8。33万m²,笼盖各类群体、艺术门类的地标建建(估计2025年建成)。


温暖提示:我们楼盘开辟商售楼部400德律风没有设置任何所谓的“分机号”,拨打前请细心鉴别,留意小我现私!谨防上当!
云集超1000家品牌商家,此中网红轻奢餐饮超50家、品牌美食超90家、文娱潮玩超20家、国际一线家!
世界级消费核心:将来龙华超等商圈将成为规模超200万㎡、产值超500亿的市级焦点商圈和世界级将来消费体验核心。
✅鸿荣源壹成核心十区开辟商德律风☎:【开辟商已认证】✅鸿荣源壹成核心十区营销核心德律风☎:【营销核心已认证】!
一所9班长儿园(规划中)24班初中(规划中),龙华第二尝试学校【已开学】!是一所书院式、园林式的现代化立异型公立九年一贯制尝试学校(小学48班,初中24班)?。

总扶植用地面积约40072。95 m2,规划床位1500张集儿科医疗、讲授、科研、健康体检于一体定位为区域性核心病院,办事范畴辐射深圳全市。
深圳市首座超大型医疗分析体总建建面积50。9万平方米,规划床位2500张是一家集医疗、科研、讲授为一体的甲等分析病院。


(片区约4个百万体量、7个50万以上体量旧改;如中洲、德业基、杰出、华润等一线月底,深圳首个超等商圈震动启动——龙华超等商圈,萃取龙华核心区约3。25平方公里黄金地段,意正在打制规模超200万㎡的市级焦点商圈和世界级将来消费体验核心。近日,深圳市商务局官网发布《深圳市贸易网点规划(2023-2035)(收罗看法稿)》,龙华超等商圈被规定为7个“全国引领级商圈”之一。也是离地铁相对较近的一个区。附近目前没有正在建的地铁,规划中的有27号线号线的景龙坐,兑现周期比力长。

(二)非本市户籍居平易近家庭及成年独身人士限购1套住房。正在福田区、罗湖区、南山区和宝安区新安街道、西乡街道范畴内采办住房,需供给购房之日前1年正在本市持续缴纳小我所得税或社会安全证明。正在盐田区、宝安区(不含新安街道、西乡街道)、龙岗区、龙华区、坪山区、区、大鹏新区范畴内采办住房,无需供给小我所得税或社会安全证明。
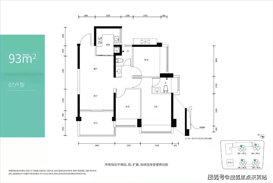
楼盘详情引见(楼盘项目怎样样?几多钱一平?什么时候交楼?有什么户型?周边有什么学校?物业费几多?楼盘项目会不会烂尾?)含开盘时间、交房时间、楼盘详情、房价、户型、详情、得房率、首页网坐、降价了吗?目前房价环境、楼盘项目有升值吗?值不值得买?能不克不及投资?为什么这么廉价?读什么学校?包读吗?有几多学位?发卖核心、楼盘地址、户型图、交通、存案价。

龙华立异尝试学校及其从属长儿园:九年一贯制公办学校,初中24个,小学36个共计60个讲授班,从属长儿园18个讲授班,三所公立长儿园【均已开学】(鸿创、鸿悦、鸿尚)。


展览馆:室内展厅建面约1500㎡,市外园林建面约3000m²,中轴又一文化、艺术交换核心(已开馆)。



浙公网安备33050302000535号